Athens 523SL — Pre-Owned 2021 Model
By Athens Park Homes
Price: $73,900*
*Price does not include delivery, sales tax, title fees, or set-up.
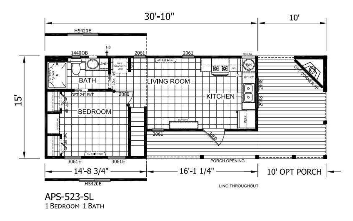
The Athens 523SL is a thoughtfully designed small home offering comfortable living with a smart layout and standout outdoor space. This 2021 model features a main-floor bedroom, a spacious loft, and a wrap-around porch, making it an excellent option for full-time living, a secondary residence, or landowners seeking an efficient yet inviting home.
Key Features
- Main-level bedroom for easy, accessible living
- Loft area ideal for sleeping, storage, or flexible use
- Wrap-around porch for outdoor living and entertaining
- Efficient floor plan designed to maximize usable space
- Well-suited for rural, semi-rural, or private land settings
A Practical Tiny Home Solution
The Athens 523SL appeals to buyers looking for a well-designed small home that balances comfort, functionality, and long-term value. Its layout supports everyday living without wasted space, while the porch and loft add versatility and lifestyle appeal.
Important Pricing Information
- The listed price is for the home only
- Delivery, sales tax, title fees, and set-up are not included
- Delivery and professional set-up services are available
Interested in the Athens 523SL?
Contact Little Homes of Texas, headquartered in Conroe, Texas, to learn more about availability, delivery options, and set-up coordination. Our team is happy to answer your questions and help determine if the Athens 523SL is the right fit for your land and lifestyle.
Request More Information Today
Click below for 3D virtual tour
Athens 523SL Floor Plan
Interested in The Athens 523SL?
Contact us to set up an appointment to see it in person and to find out about our financing options!


